ID CP1255456

teren intravilan Ragla

ID CP1255456

158,843 RON

Teren de 2,866 mp de vânzare
Ragla
2,866 mp

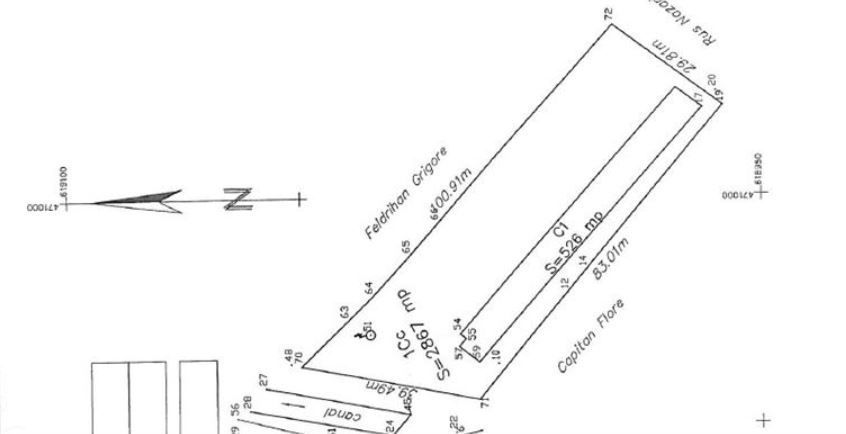
Proprietatea este situata in intravilanul localitatii Ragla, comuna Dumitrita, judetul Bistrita-Nasaud, la intrarea in localitate, zona "La grajduri", in fosta ferma zootehnica (parcela 5, tarlaua 48/4). In apropiere sunt locuinte edificate pe terenuri cu suprafete cuprinse intre 500 - 1000 mp. Accesul se face pe un drum pietruit de cca. 250 m, din drumul judetean. Terenul este intravilan, categoria de folosinta curti constructii. Acesta este in forma regulata, fara denivelari, avand suprafata de 2.866 mp, cu lungime de 72,57 m si deschidere 39,49 m la drumul comunal pietruit. Pe teren se afla fosta hala de productie a fermei zootehnice, in suprafata de 526 mp, cladirea fiind nefunctionala si neintabulata. Utilitati adiacente: curent electric si apa.. Metoda de vanzare: Licitatie publica.

Citește mai mult

  • Tip teren
    Construcții
  • Suprafață teren
    2,866 mp
  • Front stradal
    28.0 m
  • Clasificare
    Intravilan

Facilități

Andrei Grecu - CERVED PROPERTY SERVICES
Andrei Grecu
Broker

0731038646


Solicită chiar acum o vizionare
Telefon
Sună acum Solicită vizionare
Necesare:

Site-ul nu poate funcționa corect fără aceste cookie-uri. Vezi cookie-urile

Statistică:

Strângem statistici anonime despre voi, vizitatorii unici, pentru a vă îmbunătăți experiența dumneavoastră. Vezi cookie-urile

Marketing:

Pentru a ne promova mai eficient serviciile noastre, folosim cookies pentru a vă identifica și a vă oferi proprietăți și servicii personalizate. Vezi cookie-urile

Acest site folosește cookies, află detalii. Alege ce tipuri de cookies dorești să permitem: