ID CP1503955

Spatiu comercial Constanta

Această proprietate nu mai este activă,
te invităm să vizualizezi proprietăți similare

ID CP1503955

1,200,000 € + 21% TVA

Spațiu comercial de vânzare
Grivitei, Constanta
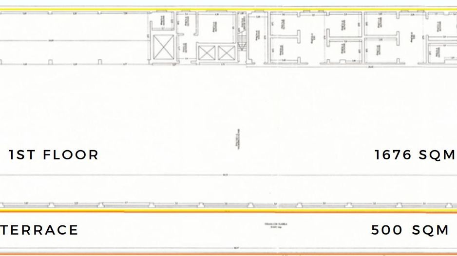
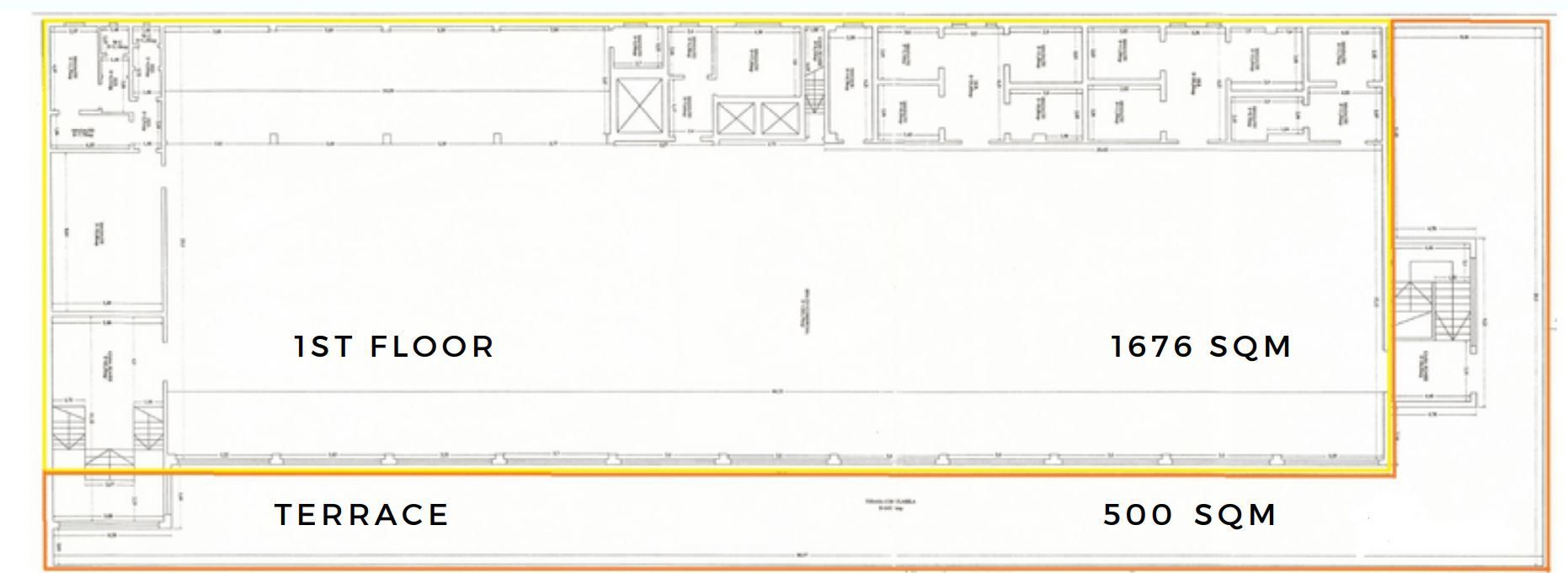
1,676 mp
1980

Spatiul comercial cu suprafata utila de 1676 mp si 500mp terasa, situat la etajul 1 al unui imobil cu regim de inaltime S+P+1. Spatiul dispune de 2 intrari, lift si anexe.

Citește mai mult

  • Tip imobil
    Centru comercial
  • Etaj
    1
  • Număr camere
    8
  • Număr băi
    1
  • Suprafață construită
    1,927 mp
  • Suprafață utilă
    1,676 mp
  • Vitrină (m)
    30.0 m
  • Disponibilitate
    Imediat
  • Compartimentare spațiu
    Parțial compartimentat
  • An construcție
    1980
  • Număr etaje clădire
    1
  • Are demisol
    Da

Facilități

Necesare:

Site-ul nu poate funcționa corect fără aceste cookie-uri. Vezi cookie-urile

Statistică:

Strângem statistici anonime despre voi, vizitatorii unici, pentru a vă îmbunătăți experiența dumneavoastră. Vezi cookie-urile

Marketing:

Pentru a ne promova mai eficient serviciile noastre, folosim cookies pentru a vă identifica și a vă oferi proprietăți și servicii personalizate. Vezi cookie-urile

Acest site folosește cookies, află detalii. Alege ce tipuri de cookies dorești să permitem: